CONTACT
-お気軽にお問い合せください-
間接照明を設えた下がり天井にエコカラットが際立つ約16.4帖のLDK。床[LIXILラシッサDフロアアース グレージュエルムF]、TV背面[LIXILエコカラット ラフセメント ダークグレー]、TVボード[AICAスマートシューノ]
天井のアクセントクロス[サンゲツRE55879]にペンダントライトが映えるダイニング。見守り学習やPC作業などがはかどるカウンターにインテリアとしてもお洒落なウォールシェルフ[AICA棚板]を配置
[タカラスタンダード オフェリア]機能的で見た目にもお洒落なスパイスニッチがあるので、腰壁に高さが出て水撥ねや外側からの視界を程よくシャットアウト
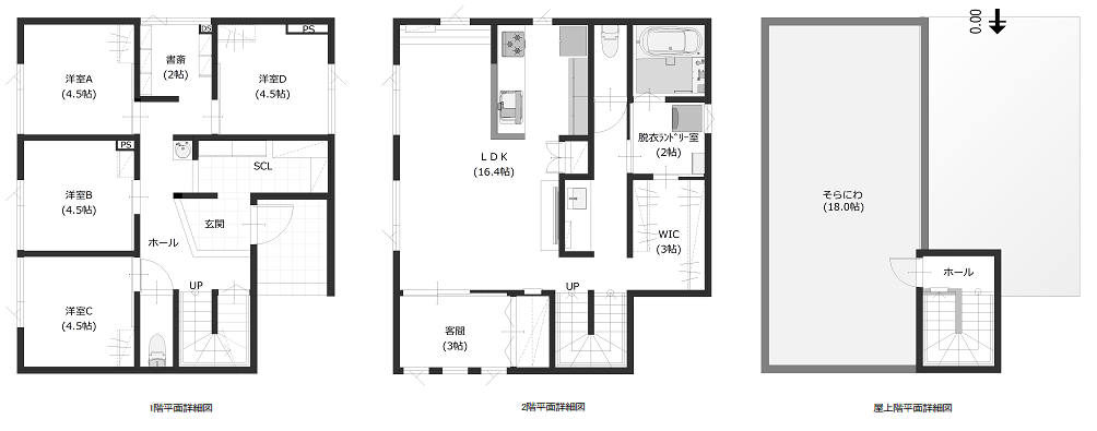
3帖の客間にはロープが収納されるランドリーロープ[カワジュン]があるので、家事・寛ぎ・来客用と用途に合わせ多目的に使用できる便利な空間
邪魔せずメイクを楽しめる幅広の洗面化粧台[AICAスタイリッシュカウンター]。シェルフミラーやタオルリング[カワジュン]、ウォールシェルフなど使いやすさだけでなくディテールにもこだわった
洗面室、脱衣ランドリー室、FCLは回遊動線になっているので目的に合わせて行き来でき、渋滞も解消する効率の良い間取りプラン
壁に反射する光が幻想的なトイレは生活感を取り除いた非日常の空間に[LIXILベーシアハーモL][サンゲツRE55615/55616]、床[Daiken旧ハピアフロア]
目の前に[LIXILエコカラット 陶連子 灰色]が出迎えるホテルライクな玄関。ハンガーバーに吊るされたグリーンのアクセントが彩を添える
便利な2way玄関。ペンダントライトにアクセントクロス[サンゲツFE76755]が映えるミラーや手洗器[AICAスタイリッシュカウンター]が実用性とデザイン性を兼ねている
本棚を造作した自慢の書庫。暗くなるとペンダントライトの暖かい光が隠れ家のような雰囲気に一転
統一感のあるアースカラーとボタニカルデザインの2種類のアクセントクロスを採用した洋室
1帖の踊り場スペースをすっきりとさせるスリッパニッチ。いつでも気軽に屋上へ出入りできる真似したいアイテム
18帖の広々とした屋上庭園は見晴らしの良い最高のロケーション。サイディングを貼り分けし外観とは違った印象に[KMEWネオロック コンポジション チタンブラック]
縦張りのサイディングに幅の異なるサイディングを横張にした洗練されたスタイリッシュな外観[アイジー工業ガルブライト スチールグレー/ガルスパン ダークメタリック]
1~2階+屋上階 平面詳細図
3,000万~4,000万円(税込)
暮らしを楽しむ屋上庭園と
家族みんなが「ちょうどいい」
と感じる住まい
もともと同じ土地に建っていた古い家に住んでいましたが、
年数も経ち、寒さも気になるようになり、「そろそろ直さないといけないな」と感じるようになりました。
リフォームだけでなく、建て替えも含めて検討し始めたのがきっかけです。
いろいろな住宅雑誌やホームページを見ている中で、寿建設さんを知りました。
大手ハウスメーカーよりも、地場の工務店で、デザイン性が高く、柔軟に対応してくれそうな会社がいいなと思っていたんです。
最終的には5〜6社ほどに絞って比較検討しました。
もちろん展示場にも足を運びましたが、「やっぱりどんな人が建てているか分からない会社より、専属大工さんがいる会社がいい」 という気持ちが強くなっていきました。
その点でも、寿建設さんは安心感がありました。

最終的に寿建設さんに決めた一番の理由は、屋上庭園でした。
話を聞く中で、説明がとても分かりやすく、押しつけではなく、自然に理解できたのも好印象でした。
もともとアウトドアが好きで、キャンプやBBQもよくしていましたが、BBQを家の前でやると近所の目や匂いが気になることもありますよね。
しかし屋上庭園なら、周囲を気にせず、開放感の中で楽しめるということで「これは理想的だな」と感じました。
屋上からは手稲山も見えて、とても気持ちがいいです。下の子は屋上でサッカーのドリブル練習をしたり、家族それぞれが自由に使える場所になっています。
キャンプ用品など荷物が多いので、ある程度家の中にしっかり収納できるのも助かっています。
担当の栗林さんは、連絡もこまめで、「こうしたい」と伝えるとすぐに「それならこうですね」と提案してくれました。
逆に、あまり合わない要望には「それは合わないと思います」とはっきり言ってくれたので、迷いなく決めることができました。プロとしての意見、これがとても助かりました。
希望として伝えたのは、次のような点です。
建売住宅のように最初から決まっているわけではなく、注文住宅は一つひとつ決める大変さもありましたが、栗林さんがイメージしやすい写真を探して見せてくれたので、楽しみながら決めていくことができました。

全体のテイストはホテルライクを意識しつつ、グリーンを差し色にしたデザインを提案してもらいました。 自分たちでは思いつかない組み合わせもあり、「プロに任せて良かった」と感じています。
どこも気に入っていますが、特に好きなのはリビングです。
下がり天井にすることで、ダイニングと空間をゆるやかに分け、メリハリのある空間になったと思います。

この家はどの部屋にいても温度差が少なく、とても暖かいです。もともとオイルヒーターを置きたくなかったので、全館空調の床下暖房は我が家にぴったりでした。
遊びに来た人からも「すごいね」と言ってもらえることが多く、デザイン性と快適さ、どちらも満足しています。
施工を担当してくれた大工の奥崎さんは、仕事にとても自信をお持ちで、私たちも安心しておまかせできましたし、実際とても丁寧に家をつくってくれました。
現場が家の近くだったこともあり、妻がよく様子を見に行っていて、照明や家具のイメージも湧きやすかったです。
「いつでも見に来ていいよ」という雰囲気だったのも、本当に良かったです。
子どもたちもとても気に入っていて、「この家いいね」とよく言っています。屋上の楽しさも、家の暖かさも、家族の暮らしにぴったり合っていると感じています。
デザインにもこだわりたい、でも性能や断熱・気密性にも妥協したくない。
そんな方には、寿建設さんをおすすめしたいです。
営業の栗林さん、現場監督の濵田さん。
女性スタッフのきめ細やかな対応は、妻もとても信頼していました。
レスポンスが早く、要望に+αで返してくれる。
家族全員が「栗林さんで良かった」「寿建設さんで良かった」と思っています。
本当にありがとうございました。
札幌市S様邸
リビング窓から愛車鑑賞できるインダストリアル×ヴィンテージなガレージハウス
札幌市I様邸
無駄を省いたコンパクトな家事動線で趣味も家族時間も楽しむ3LDKの住まい
札幌市M様邸
メインクロスがグレー!隠れ家カフェ風の佇まいと生活感を感じさせない収納豊富な住まい
北広島市I様邸
デザイン、利便性、採光、趣味、我慢しない二世帯住宅|爽やかナチュラルテイストの住まい
苫小牧市Y様邸
アウトドア好き一家が建てた収納たっぷり海が見える4階屋上庭園×明るく開放的な2階LDKの住まい
札幌市H様邸
「子供たちがのびのび過ごせるように」望みを叶えた子育て家事動線の住まい
札幌市K様邸
屋根付きの屋上庭園と吹き抜けからお日様が届く土間で年中遊んで暮らせる住まい
-お気軽にお問い合せください-